
Anna 85m2 avec garage de 15m2 – Davluzinay
Luzinay
David SIMONNET
06 50 17 71 86
Anna 85m2 avec garage de 15m2 – Davluzinay
Terrain + Maison – Votre projet clé en main !
Emplacement : Luzinay proche terrain de Rugby
Surface du terrain : 400 m2 – Terrain plat, viabilisé et idéalement situé
Maison neuve : 85m² et garage 15m2 – Modèle moderne et personnalisable
Éligible PTZ et Action logement
Ce que nous vous proposons :
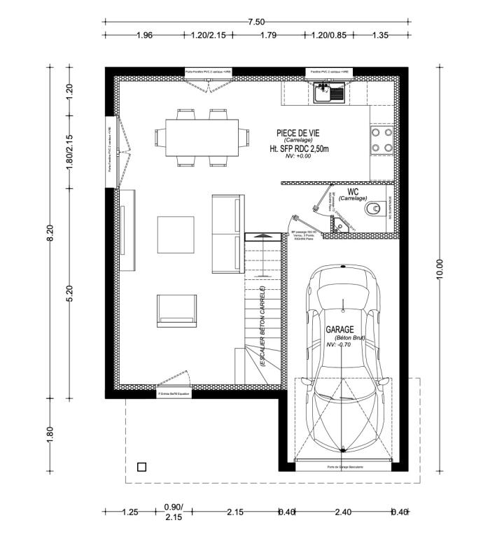
Rez-de-chaussée :
• Grande pièce de vie lumineuse avec cuisine ouverte pour un espace convivial.
• Entrée avec placard intégré pour plus de rangement.
• WC séparé avec lave-main.
• Escalier Béton carrelé.
• Garage attenant de 15 m².
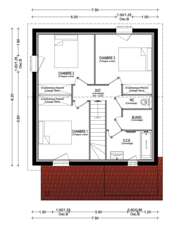
À l’étage :
• 3 belles chambres avec retour placards intégrés.
• 1 buanderie
• Salle de bain avec vasque , Baignoire et WC standard.
Les + de cette maison :
• Normes RE2020 : performance énergétique optimale.
• Pompe à chaleur : chauffage et Clim réversible.
• Prestations modernes :
• Menuiseries aluminium/PVC personnalisables.
• Carrelage 45X45 et faïence 60X30 au choix.
• WC pour une finition élégante.
À proximité : écoles, commerces, transports, nature…
Un projet complet, accompagné du début à la fin !
Prix terrain + maison à partir de : 284 000 Euros TTC assurance DO et GL compris.
Contactez-nous dès maintenant pour une visite du terrain ou une étude gratuite de votre projet !
Prix hors frais de notaire, raccordements (VRD) et finitions (parquet, peintures, cuisine équipée).
Terrain proposé en partenariat avec nos partenaires fonciers – sous réserve de disponibilité.
Terrain vendu par un propriétaire tiers. Nos prestations concernent uniquement la construction de la maison. Photo non contractuelle


