
Carla 75m2 avec garage de 192 – DavCarlaChatonnay
Châtonnay
FH Habitat
06 50 17 71 86
Carla 75m2 avec garage de 192 – DavCarlaChatonnay
À saisir ! Maison à personnaliser, située dans un environnement calme et recherché, à proximité immédiate : Chatonnay
Eligible PTZ et Action logement
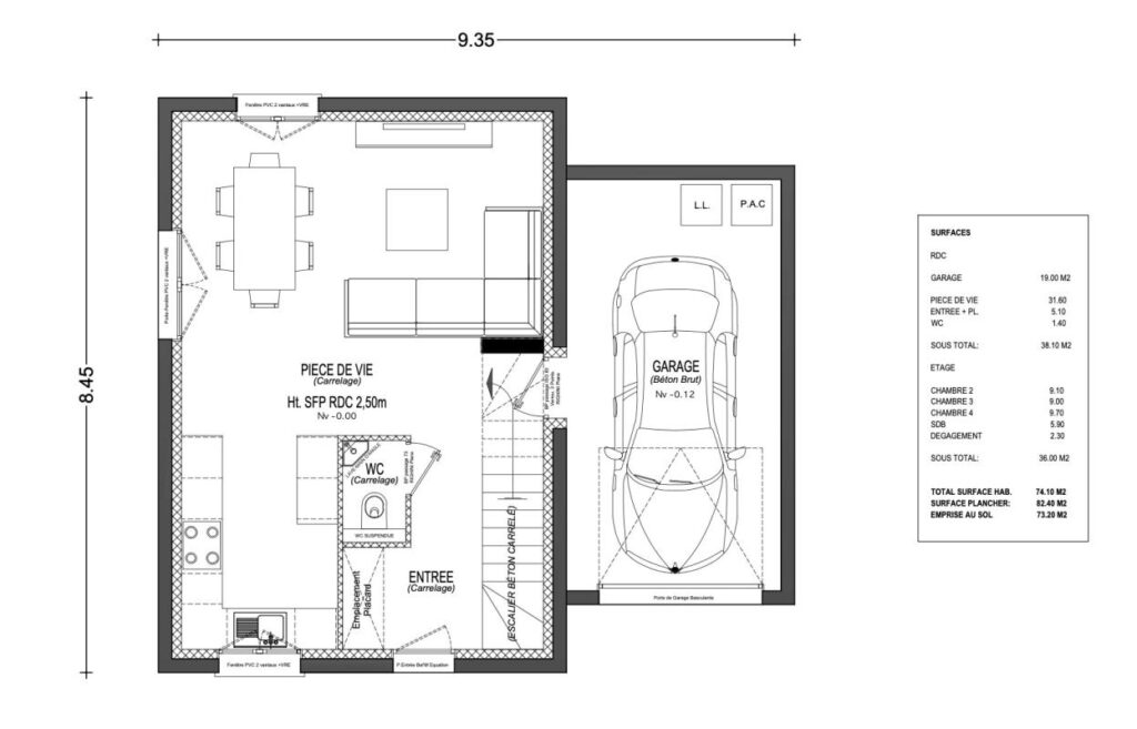
Description de la maison :
Rez-de-chaussée :
• Grande pièce de vie lumineuse avec cuisine ouverte pour un espace convivial.
• Entrée avec placard intégré pour plus de rangement.
• WC suspendu séparé avec lave-main.
• Escalier Béton carrelé.
• Garage attenant de 19 m².
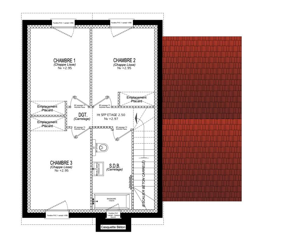
À l’étage :
• 3 belles chambres avec placards intégrés.
• Salle de bain avec vasque , Baignoire et WC standard.
Les + de cette maison :
Normes RE2020 : performance énergétique optimale.
Pompe à chaleur : chauffage et clim réversible.
Prestations modernes :
• Menuiseries aluminium/PVC personnalisables.
• Carrelage 60X60 et faïence au choix.
Maison personnalisable selon vos envies !
Contactez-nous vite pour organiser une visite !
À noter
Prix hors frais de notaire, raccordements (VRD) et finitions (parquet, peintures, cuisine équipée).
Terrain proposé en partenariat avec nos partenaires fonciers – sous réserve de disponibilité.
Terrain vendu par un propriétaire tiers. Nos prestations concernent uniquement la construction de la maison. Photo non contractuelle




