
Maison P.Pied 90m2 et 19m2 de garage – DavCharlyppied
Charly
David SIMONNET
06 50 17 71 86
Maison P.Pied 90m2 et 19m2 de garage – DavCharlyppied
Dans le centre de Charly 700 m2 non viabilisé
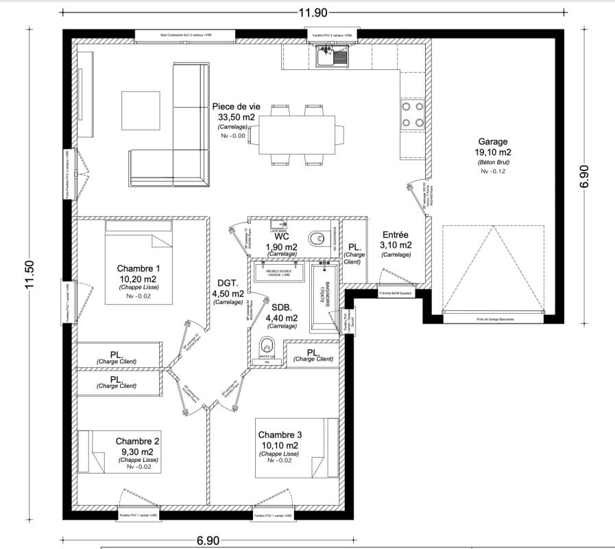
Fh Habitat constructeur de maison individuelle vous propose une maison de P. Pied de 90m2 et 19m2 de garage.
Eligible PTZ et Action logement
Maison de 90m2 au Norme RE 2020 .
Grande espace de vie , 3 Chambres ,1 SDB ,1 Cellier et 1 WC suspendu.
Menuiserie électrique en Gris RAL 7016 ,carrelage 60×60 et faience 60X120.
Tuile terre cuite ,crépi gratté,bandeau PVC,chauffage climatisation réversible.
Assurance dommage ouvrage et garantie de délais et livraison inclus.
Prestations hors frais de Notaire , Viabilisation , VRD ,finition (parquet,peinture , cuisine…)
Terrain proposé par notre partenaire foncier – Sous réserve de disponibilité.
Terrain vendu par un propriétaire tiers. Nos prestations concernent uniquement la construction de la maison. Photo non contractuelle.



