
Maison – Tny179247
SAINT MARTIN EN HAUT
David SIMONNET
06 50 17 71 86
Maison – Tny179247
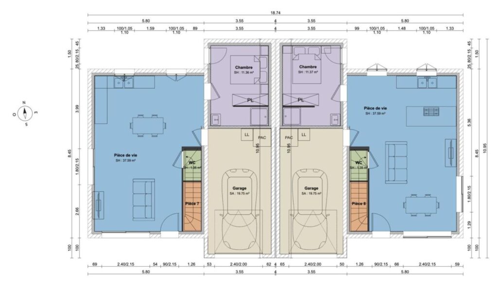
Saint Martin en haut ,Secteur calme avec vue sur les monts de Duerne .Terrain non viabilisé de 450m2 ,Proche des commerces / Ecole / Collège… Eligible PTZ et Action logement Maison neuve aux normes RE2020 de 90m2 avec garage de 19m2. – Espace de vie ouvert. – Chambre parentale au RDC avec SDE 1 vasque et 1 douche extra-plat. – WC suspendu avec lave-main. – Etage 3 chambres . – SDB avec baignoire , 1 vasque et 1 WC standard. – Escalier béton carrelé – Carrelage 60X60 et faience 60X120. – Chauffage pompe à chaleur et climatisation. – Menuiserie gris RAL 7016 électrique. – Bandeaux PVC et cheneaux en RAL 7016. – Prix hors frais de notaire, viabilisation,vrd et finition (peinture,parquet,cuisine…) Terrain vendu par un proriétaire tiers ,nos prestations concernent uniquement la construction de la maison. Photo non contractuelle. – Mentions légales : Proposé à la vente à 260000 Euros (honoraires à la charge du vendeur) – DPE en cours – Affaire suivie par Mr David SIMONNET : 06 50 17 71 86 – FH HABITAT Ternay – Pour plus d’informations, contactez l’agent au 06 50 17 71 86


