
Maison – Tny179264
PRIMARETTE
David SIMONNET
06 50 17 71 86
Maison – Tny179264
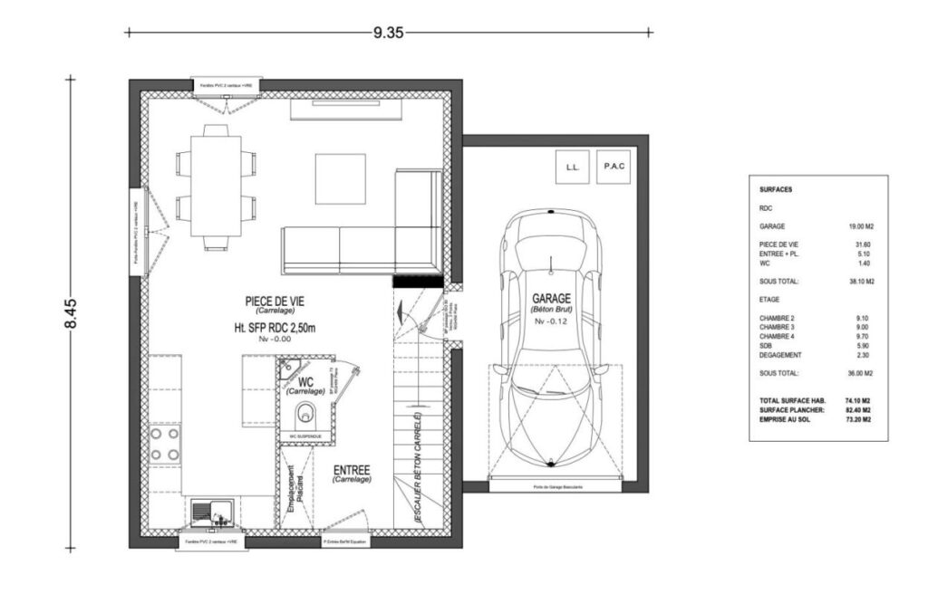
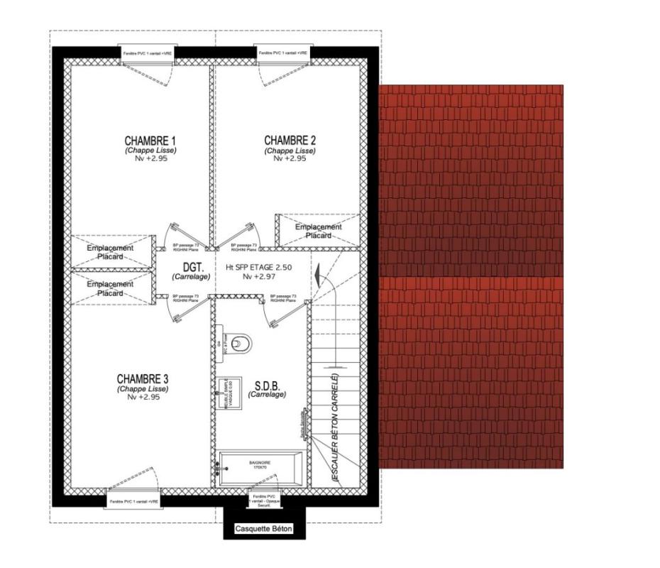
Primarette au coeur du village ,petit lotissement viabilisé. Terrain de 580m2 à proximité école / commerces. Eligible PTZ et Action Logement Maison à étage de 75m2 avec garage de 19m2. RDC 1 grande pièce de vie , 1 wc suspendu+lave main , escalier béton carrelé. Etage 3 Chambres , 1 SDB avec 1 vasque ,1 baignoire et 1 wc standard. Normes RE2020 avec chauffage clim réversible , carrelage 60X60 et faience 60X120. Menuiserie électrique ,tuile terre cuite,crépi gratté,bandeau PVC. Assurance Dommage ouvrage et garantie de délais et de livraison inclus. Prestations hors frais de Notaire ,VRD et finition (parquet,peinture,cuisine). Terrain proposé par nos partenaires fonciers -Sous réserve de disponibilité. Terrain vendu par un propriétaire tiers.Nos prestations concernent uniquement la construction de la Maison. Photo non contractuelle – Mentions légales : Proposé à la vente à 217000 Euros (honoraires à la charge du vendeur) – Affaire suivie par Mr David SIMONNET : 06 50 17 71 86 – FH HABITAT Ternay – Pour plus d’informations, contactez l’agent au 06 50 17 71 86




